Primary Metering

Types Of Primary Metering We Offer
Keltour Pole Mounted Metering rack is a solution for mounting IT’s (instrument transformers) to a pole. Keltour team will validate the right Voltage, current ratios, pole diameter and enclosure ratings. Keltour offers these units in various sizes and configurations listed below.
Keltour Pad Mount metering enclosure is a steel enclosure containing IT’s (instrument transformers)with padlocking doors for restricted access. Pad mount Metering units are placed on top of a concrete foundation/vault. Keltour team will validate Voltage, Current ratios, pad diameter and enclosure ratings. Keltour offers these units in various sizes and configurations listed below. Click here to view our recent media for Pad Mount Metering

Consisting of 1 VT and 1 CT, PMU 1 offers a metering solution when only 1 Phase of a high voltage line needs to be monitored.

Consisting of 3 VT and 3 CT, PMU 3 offers a metering solution when 3 Phases of a high voltage line without a neutral line needs to be monitored.

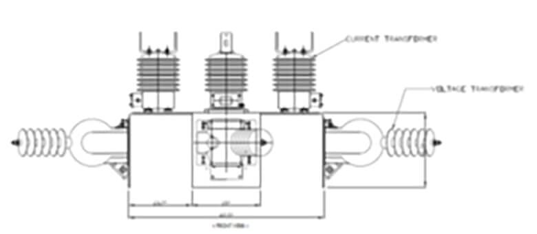
Consisting of 3 VT and 3 CT, PMU 3 offers a metering solution when 3 Phases of a high voltage line with a neutral line needs to be monitored.

Consisting of 2 VT and 2CT, PMU 50KV offers a metering solution when 3 Phases of a high voltage line without a neutral need to be monitored.

Certifications and Testing
Keltour is a CSA, UL, CE Certified shop, and we offer other certifications as well.
Features & Specs
- 15Kv, 25KV, 35Kv and 50Kv configurations available.
- All aluminum or galvanized steel construction for mounting current and potential transformers for primary metering hookups. The mount comes ready to be carried to the job already wired and tested, with instrument transformers in place. Units are pre-drilled for quick and easy installation.
- Anti-condensation coated pad mount enclosure.
- Windowed metering box for ease of inspection.
- Metering box is attached and all wiring is predone.
- Plug and Play for quick onsite installation.
- Doors are padlocking plus the addition of a Pentahead security bolt.
- Enclosure design with unauthorized access prevention in mind.
- Live Front or Dead Front
- Single or Three-Phase Configurations
- Arteche, GE, or Ritz Voltage Transformers
- 200 or 600 Amp
- Indoor or Outdoor Instrument Transformer
- 15Kv, 25KV, 35Kv and 50Kv configurations available.
- Proprietary design allowing for 1 frame that fits multiple pole sizes.
- Transformer connections are terminated into a junction box for ease of field installation.
- Corrosion-resistant materials are used for the entire assembly.
- Multiple configurations available based on the customer’s needs.
- Plug and Play for quick onsite installation.



What is Primary Metering?
Primary metering consists of the following Voltage transformer, current transformer, high incoming voltage, which is fed into the transformer and is stepped down to low voltage, typically 120Vac to be connected into a metering unit.
Industries That Benefit From Our Control Panels
Industries that benefit from our Primary Metering are Utility Companies / Solar Farms / Wind Farms
Pad & Pole Mounted Primary Metering
Learn more about pad & pole mounted primary metering offered by the team at Keltour by reading through our most frequently asked questions for more guidance on our industrial and utility solutions.
FAQs
Metering units are secondary values for electrical current and voltage transformers. In other words, metering units are the values existent at the voltage and current inputs at the back of a meter. An electric meter measures the total amount of power consumed over a period of time. Metering units can either be analog or digital and are used to record how much electricity a home, building, utility or warehouse uses for monthly billing purposes. Metering units are essential as they help buildings perform more energy efficiently, and they can help you indicate when there is something wrong with your building’s electricity.
A pole-mounted metering unit is designed to mount outdoors and includes current transformers and high-voltage transformers. These transformers monitor and measure electrical lines for metering purposes and are installed above ground, unlike pad-mounted metering options. Pole mount metering Units come in many different configurations.
Wiring Configurations
- 1 Phase 1 wire units
- 3 Phase 3 wire units
- 3 Phase 4 wire units
- Pole mount sizes
Keltour uses standard Pole mount solution to fit the required configurations desired. Typical sizes fits pole diameters 9” through 11”.
A metering pad mounted unit is an electrical power distribution unit with CT (current) & VT(voltage) Transformers that are installed on the ground. The transformers are protected in a steel cabinet that is generally fixed on a concrete pad. Metering mounts come in various different shapes and sizes and are constructed from durable materials to ensure the utmost safety, efficiency and protection of your electrical components. Keltour has standard sizes for 15,25,35 & 50 Kv Units. Keltour is also able to customize metering pad mounts for your electrical needs if our standard options do not work.
Do you require pad & pole mounted primary metering solutions? If so, call and speak with one of the Keltour representatives or fill out an online form, and someone from our team will get back to you as soon as possible.
We look forward to working with you.
Major Manufacturing Partners For Control Panels






















Ready to Power Up Your Operations?
Keltour provides expert electrical solutions customized to your needs. Contact us today to get started.



